102 m² Prefabrik Yatakhane

Bina Yüksekliği 250 cm
İç Duvar 6 cm - 10 cm (Opsiyonel)
İç Kapı Amerikan Kapı
Pencereler Beyaz Renk PVC Pencere
Sıhhi Tesisat Sıva Altı
Çatı Kaplaması Boyalı Galvaniz Sac, Metal (Opsiyonel) Kiremit, Shingle
Dış Duvar 10 cm
Dış Kapı Çelik Kapı Kapı
Elektrik Tesisatı Sıva Altı
Dış Cephe Boyası Silikonlu Dış Cephe Boyası
İç Cephe Boyası Plastik İç Cephe Boyası
  • Konut malzemelerinin indirilmesi ve montajı
  • Prefabrik bina elemanları (duvar panelleri ve çelik birleşim elemanları)
  • Prefabrik bina tavan kaplaması, tavan yalıtımı ve çatı kaplamanın yapılması 
  • Konut dış ve iç kapıları ve montajı
  • Konut pencereleri ve montajı (çift cam PVC)
  • Sıva altı elektrik ve su tesisatının çekilmesi
  • Elektrik armatürlerinin montajı
  • Konut dış ve iç boya işlerinin uygulanması
  • Duş teknesi, klozet, lavabo ve bataryaların paket halinde müşteriye verilmesi
  • Zemin betonu ve her türlü hafriyat işleri.
  • Nakliye ve nakliye sigortası, gerekli ise iskele ve vinç temini 
  • Zemin kaplama, zemin yalıtımı ve duvar kaplama işleri (şap,seramik,fayans,halı vs.)
  • Binanın kurulması için gerekli resmi izinlerin alınması
  • Telefon, bilgisayar ve UPS tesisatları.
  • Bina harici dış bağlantılar, ana pano, topraklama ve sayaçların takılması (Elektrik, Temiz ve Pis Su vs.)
  • Isıtma ve soğutma tesisatları ( kalorifer, klima vs.)
  • Mutfak alt üst dolapları ve banyo dolapları ve verilen vitrifiye armatürlerin montajı 
  • İstanbul dışı montajlarda montaj ekibinin konaklama ve yemek ihtiyacı alıcıya aittir
  • Şantiyede kullanılacak elektrik temini ve malzemenin çalınmaya karşı güvenliğinin sağlanması

Paylaş

Teklif Al

Bu site reCAPTCHA ile korunmaktadır. Google Gizlilik Politikası ve Hizmet Şartları geçerlidir.

Diğer Ürünleri İncele

117 m² Prefabrik Yatakhane

148 m² Prefabrik Yatakhane

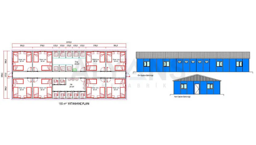
193 m² Prefabrik Yatakhane

Bize Ulaşabilirsiniz

Prefabrik modellerimiz ile ilgili detaylı bilgi almak, fiyat teklifi almak veya sipariş vermek isterseniz, iletişim sayfamızdaki formu doldurabilir veya telefon yoluyla bizimle iletişime geçebilirsiniz.

Bu site reCAPTCHA ile korunmaktadır. Google Gizlilik Politikası ve Hizmet Şartları geçerlidir.

teklif isteyin

Size en doğru teklifi sunabilmemiz için kurumsal ya da özel projelerinize ait mimari plan, proje detayları ve varsa teknik şartnamenizi info@alyansprefabrik.com adresine iletebilirsiniz. Ekibimiz talebinizi inceleyip en kısa sürede sizinle iletişime geçecektir.

Bu site reCAPTCHA ile korunmaktadır. Google Gizlilik Politikası ve Hizmet Şartları geçerlidir.